Main Menu
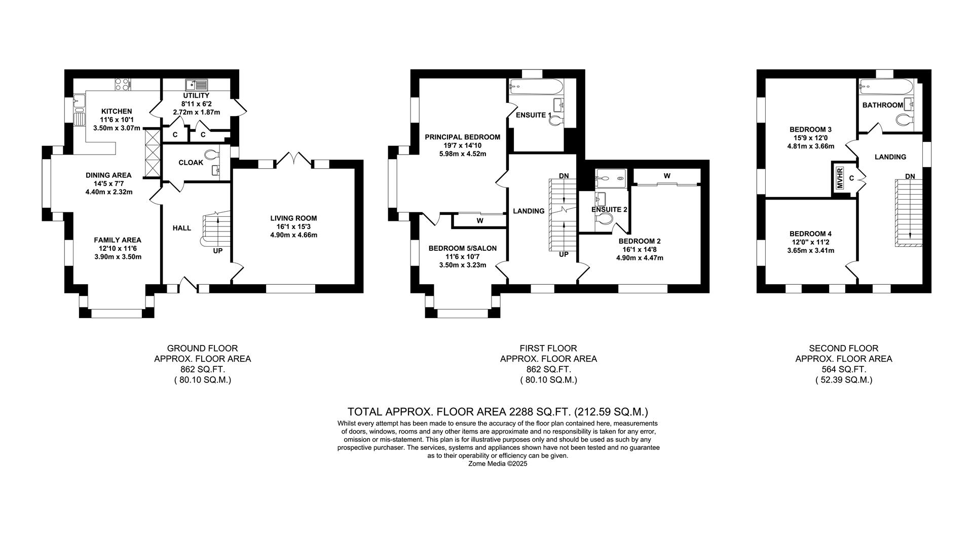
Utility & Downstairs WC
Easy access to motorway
Easy access to Barming station
2 ensuites
Living room/diner combined
Management Charge- £350 PA
Reviewed Annually

Book a market appraisal for your property today. Our virtual options are still available if you prefer.