Main Menu
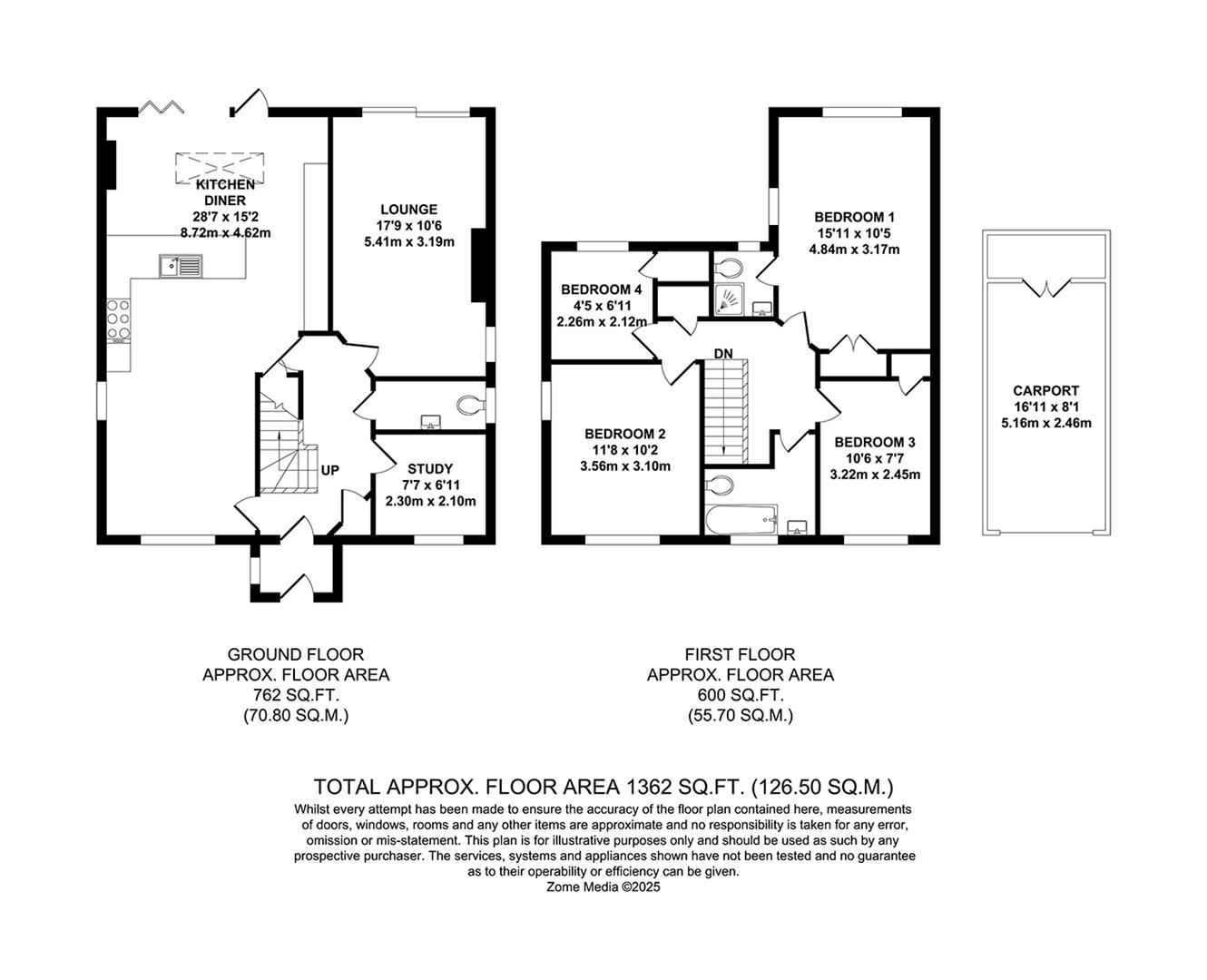
Detached House
Fabulous Kitchen Extension
Good Parking Amenities
Living Room
Study
4 Bedrooms
Ensuite, Bathroom & Cloakroom
Car Port and Parking for 3 Cars
Close to Discovery School, Cricket Ground & Woodland Walks
Kings Hill is a modern, "American-style concept village" situated in the heart of Kent that entwines quality of life, convenience and charm to create one of the most desirable places to live and bring up a family in England. Nestled amongst attractive, landscaped gardens and protected woodland areas the Management team at Kings Hill provides landscaping and maintenance for the local residents, which means that the area is safe, clean and consistently maintained to a high standard. Kings Hill offers excellent commuting facilities with easy access to the M20, a regular bus service to the nearby towns of Tonbridge, Maidstone and West Malling, as well as a direct bus service to West Malling station, where trains run to London Victoria, Charing Cross and Ashford International. The station is less than 1 mile away. Kings Hill has its own toddlers group, a pre-school nursery, 3 highly coveted primary schools and various clubs. The range of sports and leisure facilities are excellent. It includes shops, eateries, 18-hole PGA championship golf course, David Lloyd health club, sports park, community centre, numerous play parks and much more. Two miles away is the beautiful town of West Malling and all within ten miles are Royal Tunbridge Wells, Maidstone, Tonbridge and Paddock Wood. Staying closer to home Kings Hill offers Liberty Square - the hub of the village, where there is Asda, Aldi and Waitrose supermarkets, eateries and further amenities (such as hairdressers, pharmacy, doctors, dentist and much more) can be found.
Freehold
Kings Hill Management Charge for 2025 - £444pa.
Local Estate Charge (Mcarthur Park) - Approx. £350pa
Built by Hillreed
Council Tax Band F
EPC Rating B
All dimensions are approximate and any floor plans are for guidance purposes only. Reference to appliances and/or services does not imply that they are necessarily in working order. Whilst we endeavor to make our sales particulars as accurate as possible, all interested parties must verify their accuracy themselves.

Book a market appraisal for your property today. Our virtual options are still available if you prefer.